System grzewczy zapobiegający oblodzeniu podjazdów, schodów i chodników o nawierzchniach betonowych i asfaltowych.
Zastosowanie

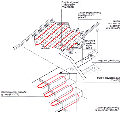
System zapobiega gromadzeniu się śniegu i oblodzeniu. Samoregulujący przewód grzejny EM2-XR oraz zestawy przewodów w izolacji mineralnej EM-MI-PACK zapewniają dostęp do chronionych obszarów w trudnych warunkach zimowych.

Opis techniczny
System grzewczy opiera się na somoregulujących przewodach grzejnych wbudowanych w podjazd lub płytę. Przewód generuje tylko tyle ciepła, ile jest potrzebne do stopienia śniegu i lodu. Sterownik włącza system tylko po wykryciu śniegu lub lodu na powierzchni.
